请选择地区
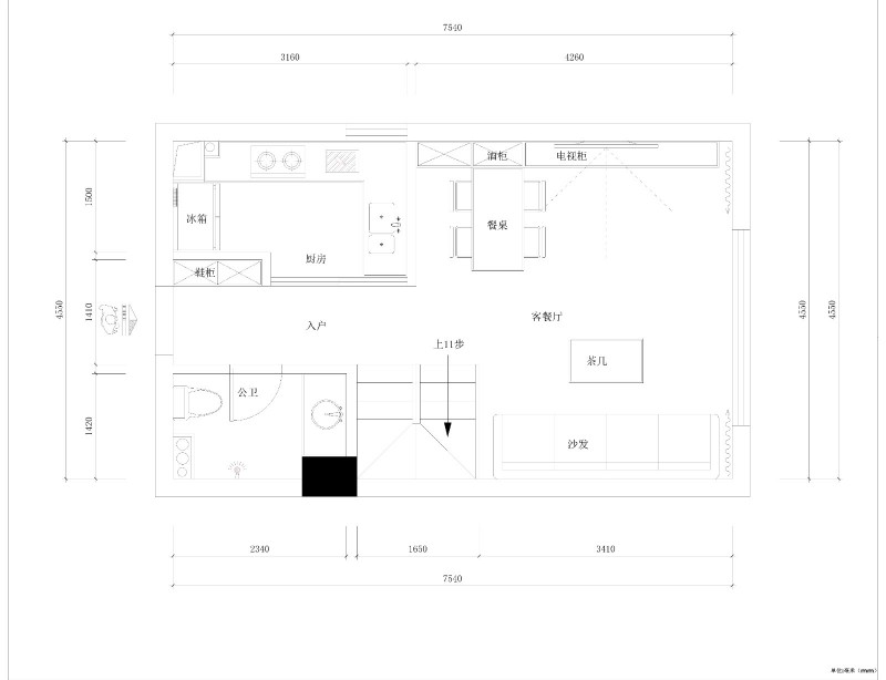
全屋户型图

三房两卫一厅,40平复式现代风,户型朝东北,南北通透
客厅

客餐厅一体,酒柜和电视柜一体,空间整体性更加显大
卧室

厨房

卫生间

推荐商品
-
- 预约半包式装修三室两厅,定金2000抵20000家电抵扣券
- ¥2000.00
-
- 全包装修两房奶油风,定金199抵1000施工费
- ¥199.00
-
- 全包装修北欧风两房,定金99抵1000地板抵扣券
- ¥99.00




商品评价
100%好评
共有0人参与评分评价商品