请选择地区
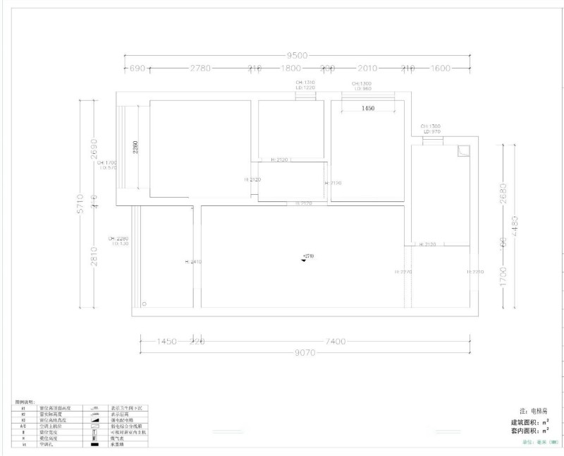
全屋户型图

原始设计比较符合大众化的需求,每个房间方正切采光好。厨房空间不太满足现在年轻人的生活习惯,小小的储藏间也有些鸡肋。
客厅

客厅做了常见电视墙柜子,可以放置客厅的一些日常用品,让东西不会在客厅到处摆放,使客厅干净整洁,原始设计比较符合大众化的需求,每个房间方正切采光好。厨房空间不太满足现在年轻人的生活习惯,小小的储藏间也有些鸡肋。

客厅区域温馨舒适,沙发、茶几、配合得宜,配色巧妙利用视觉效果不会有所打扰。
卧室

主卧卧室是主人专享的一个空间,卧室与阳台想通,打造一个洗衣晾晒,放在卧室阳台,保持客厅阳台的美观.

次卧一个比较小的空间,装收纳柜将不常用的东西收纳起来,灵活使用空间
厨房

餐厅区域开放,玻璃隔断和墙面材质的变化,让空间分隔有度,用餐空间更显得优雅.

厨房空间一条线设计起来很简单,把原有的窗户改成了小过道,用推拉门隔开,洗晾很方便
卫生间

卫生间设计简单明亮,用花砖搭配让人眼前一亮
儿童房

次卧室作为儿童房,将原有的台面与收纳柜融合,做了一个上下床,用蓝色搭配整体的房子的特点,很适合孩子的空间.
推荐商品
-
- 半包装修两室小户型,定金1000抵5000家电兑换卷
- ¥1000.00
-
- 半包装修一室小户型,定金100抵1000瓷砖抵扣券
- ¥100.00
-
- 全包装修法式复古三室,定金1000抵10000家电抵扣券
- ¥1000.00
-
- 全包装修美式古典一室小户型,定金100抵1000家电抵扣券
- ¥100.00




商品评价
100%好评
共有0人参与评分评价商品